
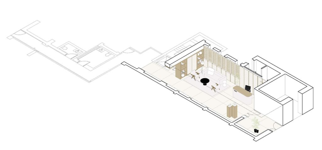
En el proyecto Padilla 66, en el corazón del barrio de Salamanca -una de las zonas residenciales más exclusivas de Madrid- se ha llevado a cabo una reforma integral en un edificio histórico, con el objetivo de revalorizar sus espacios y dotarlos de las máximas calidades.




Este proyecto ha incluido la renovación completa de las zonas comunes —recepción y jardín— así como la intervención total en 3 de las 25 viviendas: dos pisos piloto y una vivienda para un cliente particular. Además, se han desarrollado propuestas de diseño para un total de 4 unidades residenciales.





Cada intervención ha sido planteada desde una visión contemporánea y sofisticada, priorizando la excelencia en acabados, materiales y decoración. El resultado final refleja un estándar de lujo en todos sus aspectos.





Un proyecto que reinterpreta el lujo desde la sencillez, la luz y la coherencia estética.
